Tillbaka till startsidan

Domherregatan 6

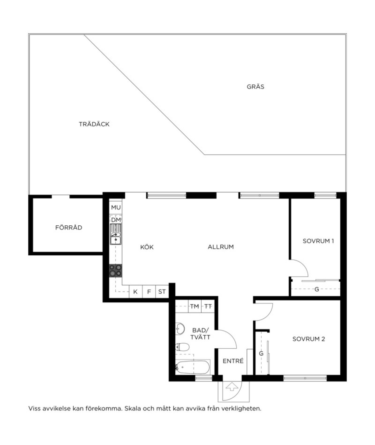
Välplanerad i markplan med egen trädgård

Upptäck denna välplanerade 3-rumslägenhet i markplan med känsla av ett eget litet hus. Här möts du av öppen planlösning, egen ingång och parkering. Den generösa uteplatsen och trädgården i soligt söderläge bjuder in till långa sommarkvällar. Perfekt för dig som vill njuta av både bekvämligheten i en bostadsrätt och friheten med en egen trädgård.

Mariastaden är ett lugnt och trivsamt område i Helsingborg, med närhet till vackra Pålsjö skog för promenader och motion. Här bor man naturnära men ändå nära stadens puls, skolor och service.

Föreningens hemsida https://mariehall1.bostadsratterna.se/

Typ
Lägenhet
Boarea
73.2 kvm
Antal rum
3 rum, varav 2 sovrum
Månadsavgift
4 625 kr/mån
Pris
3 300 000 kr
Visning
Tis 18 November kl 17:00 - 17:30 Boka din visningstid på valvet.se eller kontakta ansvarig mäklare.
Ansvarig mäklare
Catharina Olsheden
0708-48 16 16
catharina.olsheden@valvet.se
Intresseanmälan

ENTRÉ

med parkettgolv och plats att hänga ytterkläder

BADRUM/TVÄTT

med kakel och klinker, handfat med kommod, badkar, toalett, tvättmaskin och torktumlare

SOVRUM

med parkettgolv och garderobsvägg

KÖK

med kyl, frys, diskmaskin, micro och spis, utgång till trädgård och uteplats

VARDAGSRUM

med parkettgolv och öppen planlösning mot köket, utgång till trädgård

SOVRUM

med parkettgolv och gardrobsvägg

Byggnad

Byggnadstyp
Flerfamiljhus
Boarea
73.2 kvm
Areakälla
Areauppgifter enligt föreningen
Våningsplan
1 av 2. Hiss finns ej.

Ekonomi

Pris
3 300 000 kr
Månadsavgift
4 625 kr/mån.
Andel i föreningen
2.3056%
Andel av årsavgift
2.3056%
Bostaden är pantsatt
Ja
Bostadsrättens indirekta nettoskuldsättning 720 419 kr
Beräknad enligt årsredovisning 2024)

Driftkostnader

Hushållsel
600 kr/mån
Summa
600 kr/mån

Energideklaration

Status
Utförd (2019-11-10)
Energiprestanda primärenergital
125 kWh/m2 och år
Energiklass
E

Balkong/uteplats

Stort trädäck med söder och västerläge, delvis under tak, gräsmatta och omgärdad av insynsskyddande häck

Bilplats

Stenlagd parkeringsplats i samband med entrén

Förening

Namn
Brf Mariehäll 1
Organisationsform
Bostadsförening
Org.nummer
769610-6801
Föreningen äger marken
Ja
Äkta/oäkta förening
Äkta
Antal lägenheter
38 st
TV/bredband
Fiber
Renoveringar
Fasaderna renoverades 2022
Allmänt om föreningen
Föreningen består av nio flerbostadshus fördelat på de tre fastigheterna Kryddörten 6- 7 och Kryddlandet 100, i två våningar med totalt 38 bostadsrätter . Den totala boytan är 3 362 kvadratmeter. Föreningen är medlem kryddörtens samfällighet som förvaltar kvartersgator, gångar, cykelvägar och belysning.