Tillbaka till startsidan

Tulegatan 18

Välplanerad familjevilla med det lilla extra

Välkommen till denna tilltagna familjevilla om hela 200 kvm, belägen på en lugn och barnvänlig gata i eftertraktade Ramlösa. Här bor du i ett harmoniskt område med närhet till både skolor, natur och goda kommunikationer – men med en privat känsla tack vare insynsskyddat västerläge.

Bostaden är genomgående välplanerad och erbjuder generösa ytor för både familjeliv och sociala tillställningar. Hjärtat av hemmet är det imponerande sällskapsrummet i den tillbyggda vinkeldelen från 2008 – ett rum att trivas i med öppet upp i nock, vacker eldstad och utgång till ett inglasat uterum där du njuter av kvällssolen och förlänger utesäsongen från tidig vår till sen höst.

Det påkostade köket är både stilrent och funktionellt, med smakfull inredning och gott om arbetsytor. I den öppna planlösningen förbinds köket med vardagsrummet via en inbjudande matsal – en naturlig samlingsplats för både vardagsmiddagar och festliga tillställningar. I kök, matsal och vardagsrum finns vattenburen golvvärme som ger behaglig komfort året om. Kök och matsal har slitstarka keramikgolv, medan övriga delar av huset stoltserar med vackert fiskbenslagt golv som adderar elegans och karaktär.

Huset erbjuder hela fem sovrum, alla i generösa storlekar – perfekt för den större familjen eller för dig som önskar hemmakontor eller gästrum. Master bedroom har dessutom en praktisk walk-in-closet som ger gott om förvaring.

Två stilfullt helkaklade badrum kompletterar boendet, varav det ena med egen bastu – perfekt för avkoppling under årets kallare månader.

Trädgården är lättskött och ligger i ett ogenerat västerläge – här finns plats för både lek, avkoppling och odling i ett soligt och privat läge. Garage finns också, vilket gör vardagen extra bekväm.

En bostad som måste upplevas på plats – här är det bara att flytta in och börja trivas!

Snart till salu
Typ
Friliggande villa
Boarea/biarea
200/7 kvm
Antal rum
7 rum, varav 5 sovrum
Tomtarea
738 kvm
Pris
7 295 000 kr eller högstbjudande
Visning
Kontakta ansvarig mäklare.
Ansvarig mäklare
Karl Kensy
0708-24 16 16
karl.kensy@valvet.se
Intresseanmälan
Extra kontaktperson
Mariella Kensy
0733-72 16 16
mariella.kensy@valvet.se

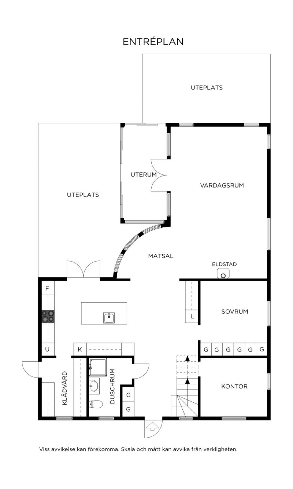
Entréplan

Hall

Redan i hallen möts du av en inbjudande känsla av rymd och harmoni. Det exklusiva klinkergolvet löper elegant vidare in i köket och binder samman ytorna på ett smakfullt sätt. Stilrena skjutdörrsgarderober ger generös förvaring och ett lugnt, genomtänkt uttryck. Här öppnar huset upp sig – en försmak av den ljusa och luftiga helhet som väntar längre in.

Kök

Köket är ett stilrent danskt designkök från Multiform och Epoq där form och funktion samspelar i perfekt balans. Den generösa köksön bjuder in till både umgänge och matlagning, medan den smart planerade förvaringen ger plats åt allt du behöver – och lite till. En separat kaffestation adderar en lyxig vardagsdetalj och gör morgonrutinen till en stund att se fram emot. Här flödar ljuset in och det öppna sambandet mot matplatsen skapar en social och inbjudande atmosfär. Utgång genom pardörrar till uteplats med eftermiddags och kvällssol.

Vardagsrum

Från köket fortsätter hemmet, med två trappsteg ner, vidare mot det generösa vardagsrummet – en plats skapad för både avkoppling och umgänge. Det moderna fiskbenslagda golvet ger rummet karaktär och tidlös elegans, medan eldstaden skapar en självklar mittpunkt under årets kallare dagar. Det öppna rummet med tak upp i nock ger en härlig känsla av rymd och ljus, och via altandörrarna nås det inbjudande uterummet som förlänger säsongen långt in på året. En storslagen sällskapsyta där vardag och fest möts i perfekt harmoni.

Uterum

Det inglasade uterummet blir en naturlig förlängning av vardagsrummet – en plats att njuta av oavsett årstid. Här ryms både middagar och stilla stunder, omgiven av grönska och ljus. De generösa glaspartierna kan öppnas upp från alla håll, vilket suddar ut gränsen mellan ute och inne och skapar en luftig, trivsam atmosfär. Ett rum att leva i – från tidig vår till sen höst

Sovrum

På entréplan finns två rogivande sovrum, båda med det fiskbenslagda golvet som löper vidare och skapar en enhetlig känsla i hemmet. Det större rummet erbjuder generös förvaring bakom stilrena skjutdörrsgarderober, medan det andra lämpar sig lika väl som barnrum, gästrum eller arbetsplats. Båda rummen präglas av en stillsam atmosfär och smakfulla materialval

Duschrum

Duschrummet nås smidigt från hallen och präglas av en harmonisk färgskala med kakel och klinker i sobra toner. Här samspelar funktion och estetik på ett självklart sätt – från den stilfulla träkommoden till den generösa duschhörnan med glasdörrar. Utrustat med handdukstork, spotlights samt vattenburen golvvärme.

Tvättstuga

Från biluppställningsplatsen når du enkelt den praktiska grovingången och tvättstugan, en välplanerad del av huset. Här finns tvättmaskin, torktumlare och goda arbetsytor som gör vardagen smidig. En perfekt entré för familjelivets alla dagar.

Övre plan

Sovrum

På övre plan väntar tre rymliga sovrum, varav ett generöst master bedroom med plats för både vila och förvaring i rymlig klädkammare. Fiskbenslagt golv löper genom hela våningsplanet och skapar en känsla av sammanhang och kvalitet.

Allrum

Centralt på övre plan ligger det trivsamma allrummet – en självklar samlingsplats för både stora och små. Den generösa fönsterkupan släpper in rikligt med ljus och skapar en luftig och inbjudande atmosfär. Ett perfekt rum för barnens lek, filmkvällar eller umgänge med kompisar.

Badrum

Badrummet på övre plan bjuder på en lyxig känsla med kakel och klinker i tidlös svartvitt kontrast. Här finns både en generös duschhörna med glasväggar och ett inbjudande hörnbadkar – perfekt för avkoppling. Den välplanerade bastun adderar en extra dos av vardagslyx. Ett badrum där varje detalj bidrar till en känsla av välbefinnande och exklusiv ro. Utrustat med tvättställskommod med dubbla kranar, spotlights, handdukstork och golvvärme.

Byggnad

Fast.beteckning
Boktryckaren 5
Byggnadstyp
1 ½ plan i vinkel.
Byggnadsår
1983, tillbyggnad 2008
Boarea/biarea
200/7 kvm
Areakälla
Areauppgifter enligt taxeringsinformationen
Antal rum
7 rum, varav 5 sovrum
Fasad
Trä
Stomme
Trä
Fönster
3-glasfönster
Bjälklag
Trä
Plåtarbete
Lackerad plåt
Tak
Betongpannor, plåt
Grund
Betongplatta med vattenburen golvvärme & krypgrund
Uppvärmning
Fjärrvärme
Vatten/avlopp
Kommunalt vatten, Kommunalt avlopp.
Ventilation
Mekanisk frånluft
Renovering
2008 Tillbyggnad i vinkel, vardagsrum och matsal.
2008 Omläggning av takpannor på befintlig byggnad, inkl plåtarbeten och avvattning.
2008 Fönsterbyte hela huset.
2008 Renovering duschrum entréplan.
2014 Ombyggnad badrum med bastu övre plan.
2018 Tillbyggnad uterum.
2018 Installation kamin.
2023 Köksrenovering, inredning inkl vitvaror.
2025 Brandskyddskontroll.
Övriga byggnader
Garage med förrådsdel samt uterum

Tomten

738 kvm.

TV- och internetanslutning

Bredband: TV: Fiber Internet: Fiber.

Driftkostnader

Uppvärmning
18 071 kr/år
Hushållsel
13 868 kr/år
Vatten/avlopp
6 281 kr/år
Renhållning
3 785 kr/år
Antal personer i hushållet
4 st
Summa
42 005 kr/år
(fastighetsavgift/skatt på 10 425 kr tillkommer)

Energideklaration

Status
Utförd (2016-12-08)
Energiförbrukning Atemp
103 kWh/m2 och år
Energiklass
D

El

Elförbrukning
4806 kWh/år

Försäkring

Bostaden är fullvärdesförsäkrad.

Ekonomi

Pris
7 295 000 kr eller högstbjudande
Typkod
220, Småhusenhet, bebyggd
Taxeringsår
2024
Skatt/avgift
10 425 kr
Småhusmark
1 793 000 kr
Småhusbyggnad
4 019 000 kr (1990)
Taxeringsvärde totalt
5 812 000 kr
Pantbrev
Totalt 12 st pantbrev om 3 400 000 kr.

Servitut / Planbestämmelser

Planbestämmelser
Tomtindelning (1982-05-07) Stadsplan (1979-11-08)