Tillbaka till startsidan

Gånge-Rolfs gata 85

Unikt radhus med prisbelönt arkitektur och magisk utsikt i Raus

Nu finns chansen att förvärva ett av Raus mest eftertraktade radhus – ett friköpt, modernt hem med utsikt som få kan mäta sig med. Här bor du med fri vy över öppna åkrar där kor och hästar betar, och kvällssolen följer dig från trädgård till takterrass. Huset belönades med priset ”Bästa Bostadshus 2007” av Sveriges Arkitekter SAR och är ritat av Tegnestuen Vandkusten i Köpenhamn, där arkitektur, ljus och funktion samspelar på bästa sätt.

Huset sträcker sig över tre välplanerade våningsplan med stora fönsterpartier från golv till tak som släpper in ljuset och ramar in den fantastiska utsikten. Entréplanet välkomnar med rymlig hall, teknikrum och ett stilrent badrum. Det moderna köket i öppen planlösning mot vardagsrummet blir hemmets sociala hjärta – perfekt för middagar med familj och vänner. Från köket och den soliga altanen njuter du av naturens skiftningar året runt, och här finns även ett utekök och förråd för maximal funktion och komfort.

Mellanplanet erbjuder två ljusa sovrum, ett badrum med badkar och tvättmöjligheter samt ett inbjudande allrum – alla med rogivande utsikt över landskapet. Överst väntar ett privat master bedroom med eget badrum och ett karakteristiskt runt fönster som släpper in himlens ljus. Den stora takterrassen blir kronan på verket – här kan du sola ostört, träna i utegymmet och njuta av panoramavy över sundet och Danmark i fjärran.

Ett modernt, energisnålt hem med låg driftkostnad, egen parkering och närhet till både skola, kommunikationer och Råås badstrand och köpcentrum. Ett drömboende för familjen som vill ha naturen, ljuset och friheten på sin sida.

Välkommen hem till Raus – ett unikt hem med utsikt som tar andan ur dig.

Typ
Friliggande villa
Boarea
154 kvm
Antal rum
5 rum, varav 3 sovrum
Tomtarea
203 kvm
Pris
5 200 000 kr /bud
Visning
Mån 1 December kl 15:00 - 17:00 Boka din visningstid på valvet.se eller kontakta ansvarig mäklare.
Ansvarig mäklare
Jeanette Borg Thunqvist
0721-64 16 16
jeanette.borgthunqvist@valvet.se
Intresseanmälan

BOTTENVÅNING

ENTRÉHALL

Svart klinker, vitmålade väggar, våtmålat tak med infällda spotlights. Garderober med förvaringsmöjligheter samt teknik utrymme. Golvvärme el

BADRUM 1

Svart klinker, vit kakel, vitmålade väggar och vitmålat tak med infällda spotlights. Dusch, vägghängd wc Ifö, vask, infälld spegel, golvvärme el

KÖK

Parkett tre stavs ask, vitmålade väggar, vitmålat tak med infällda spotlights över köksdel. Nerfällda radiatorer. Kyl Electrolux från byggnation, frys Electrolux 2023, ugn Electrolux från byggnation. Mikrovågsugn Electrolux 2022, spishäll Gorenje 2025, fläkt Thermia 2010, Diskmaskin Friggo 2025. Kök från Ballingslöv med vit slät luckadubbla diskohoar inbyggd i rostfri diskbänk

VARDAGSRUM

Parkett tre stavs ask, vitmålade väggar, vitmålat tak med nerfällda radiatorer. Utgång till altan med stora fönsterpartier

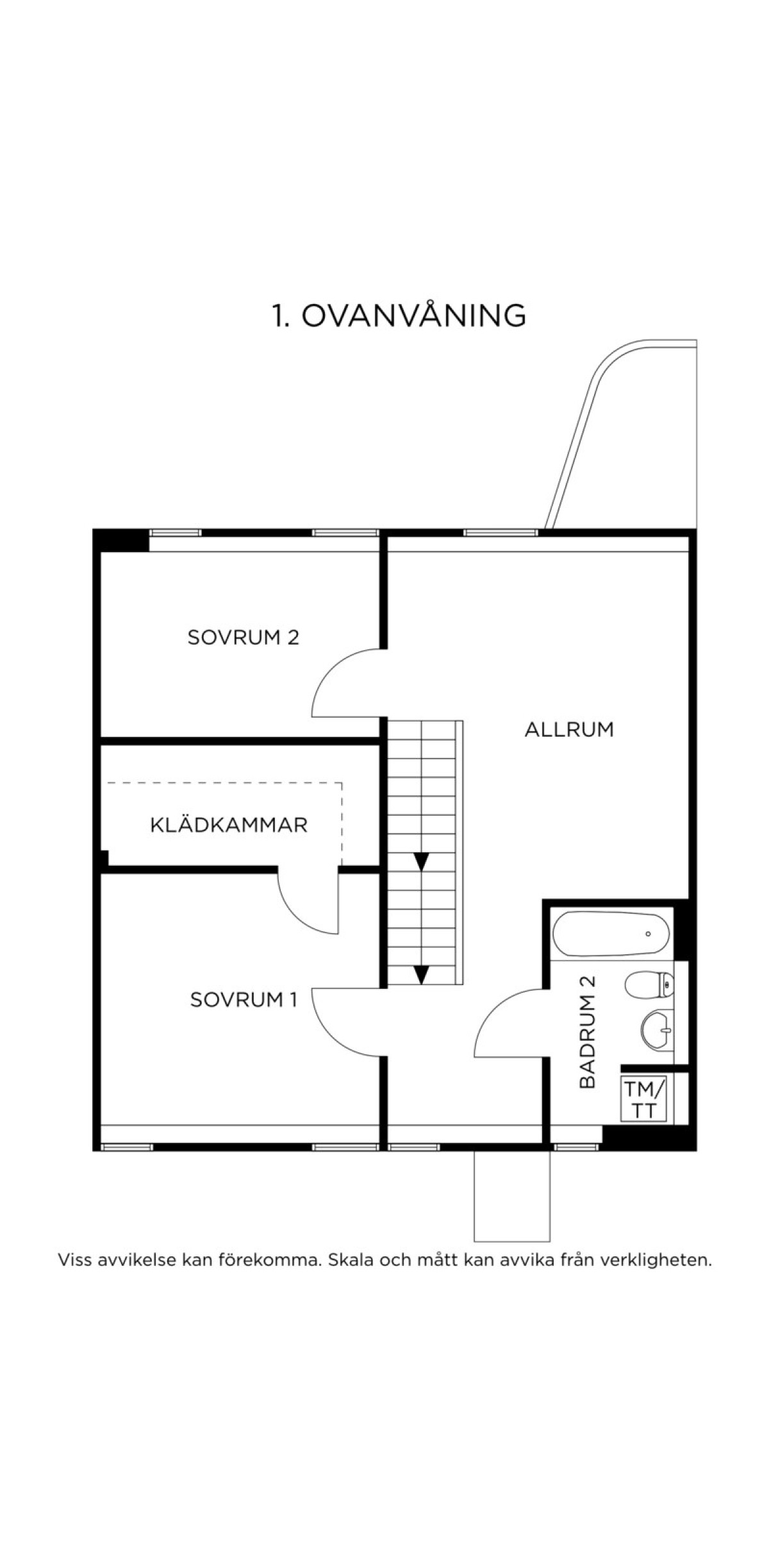
1 OVANVÅNING

BADRUM 2

Svart klinker, vit kakel, vitmålade väggar och vitmålat tak med infällda spotlights. Inbyggt badkar, vägghängd wc Ifö, vask, infälld spegel, golvvärme el, tvättmaskin Hover 2023, torktumlare 2021 Bosch

SOVRUM 1

Parkett tre stavs ask, vitmålade väggar, vitmålat tak, klädkammare

KLÄDKAMMARE

Parkett tre stavs ask, vitmålade väggar, vitmålat tak

SOVRUM 2

Parkett tre stavs ask, vitmålade väggar, vitmålat tak

ALLRUM

Parkett tre stavs ask, vitmålade väggar, vitmålat tak

2 OVANVÅNING

KONTOR

Parkett tre stavs ask, vitmålade väggar, vitmålat tak, garderober med förvaringsmöjligheter

BADRUM 3

Svart klinker, svart kakel, vit mosaik vid vask och dusch. Vitmålade väggar och vitmålat tak med infällda spotlights. Takfönster för ljusinsläpp från himlen. Vägghängd wc Ifö, vask med vit kommod, infälld spegel, golvvärme el

MASTER BEDROOM

Parkett tre stavs ask, vitmålade väggar, vitmålat tak

TAKTERASS

Trall räfflad, utegym, plats för utemöbler

ALTAN/TRÄDGÅRD

Trall räfflad, utekök med rostfri diskbänk, förvaring under diskbänk och framdraget vatten samt slangvinda. Förråd, gräs och rabatter. Utgång till grönområde

Byggnad

Fast.beteckning
Gulltopp 10
Byggnadstyp
3-plans radhus
Byggnadsår
2006
Boarea
154 kvm
Areakälla
Areauppgifter enligt taxeringsinformationen
Antal rum
5 rum, varav 3 sovrum
Fasad
Tegel/Aluminiumplåt
Stomme
Betong
Fönster
Isolerglasfönster
Bjälklag
Trä
Plåtarbete
Plåt
Grundmur
Betong
Tak
Papp
Grund
Betongplatta
Uppvärmning
Fjärrvärme
Vatten/avlopp
Kommunalt vatten, Kommunalt avlopp.
Ventilation
Mekanisk frånluft och återvinning
Renovering
2010:
Ny fläkt i kök
2012:
Plattsättning framsida
2018:
Målat om en fondvägg i allrum entréplan. Trädäck baksida
2021.
Ny torktumlare
2022:
Ny mikrovågsugn
2023:
Nytt trädäck, samt förstärkande balkar, övre terass. Ny frys i kök. Ny tvättmaskin
2025:
Målat om två väggar i sovrum 1, målat om två väggar i sovrum 2
Nya spotlights i alla badrum, till LED.
Utebelysning på murarna fram och baksida samt på förrådet. Målat murar fram och baksida. Ny spishäll och diskmaskin i kök



Övriga byggnader
Förråd
Övrigt om byggnaden
Inbyggda brandvarnare i husets konstruktion på alla våningsplan. Sector larm ingår.
Trappstegen i huset är i ek och trappräcke finns att sätta upp som inte finns i dag. Trappan är i järn med segelduk och Jonas Dahlström som är grafikerkonstnär har målat trädet i hela trappan.
Huset förbrukar 9 129 kWh/år i uppvärmning och 6 909kWh/år i hushållsel.

Tomten

203 kvm.

Uteplats

Stenlagd

Bilplats

Uppställningsplats för en bil.

TV- och internetanslutning

TV: Fiber. Bredband: Fiber.

Driftkostnader

Uppvärmning
11 399 kr/år
Hushållsel
8 937 kr/år
Vatten/avlopp
5 428 kr/år
Renhållning
8 208 kr/år
Försäkring
7 678 kr/år
Antal personer i hushållet
4 st
Summa
41 650 kr/år
(fastighetsavgift/skatt på 10 074 kr tillkommer)

Energideklaration

Status
Utförd (2025-11-07)
Energiprestanda primärenergital
63 kWh/m2 och år
Energiklass
B

Försäkring

Försäkringsbolag
Trygg Hansa

Bostaden är fullvärdesförsäkrad.

Ekonomi

Pris
5 200 000 kr /bud
Typkod
220, Småhusenhet, bebyggd
Taxeringsår
2024
Skatt/avgift
10 074 kr
Småhusmark
952 000 kr
Småhusbyggnad
2 768 000 kr (2006)
Taxeringsvärde totalt
3 720 000 kr
Pantbrev
Totalt 3 st pantbrev om 3 950 000 kr.

Servitut / Planbestämmelser

Planbestämmelser
Detaljplan (2004-03-18) Vattenskyddsområde (1996-10-17)
Rättigheter last
Last: Officialservitut Byggnad mm, 1283K-16063.6
Gemensamhetsanläggningar
Gemensamhetsanläggning: Helsingborg gulltopp ga:1 ändamål: Grönområden, Garage och/eller parkering

Allmänt

Backagårdens hästgård ligger nära samt Råådalens naturreservat som erbjuder promenadstråket och löpslingor. Gång och cykelavstånd till Råå där det finns shopping och restauranger. Närheten till Råå strand och fiskehamnen samt kallbadhus, turfiskebåtar och båtar till Ven.

Kommunikation

Stadsbussar finns på Sidgurdringsgatan ca 500 m bort, tåg Ramlösa station

Närservice

Matbutiker, apotek, vårdcentral mm

Parkering

Finns i området för gäster